Projects

Profile

Project Type: Ho Residence

The Ho Residence on Mercer Island, WA.

 

This residence is a non typical development. It is a long thin rectilinear site fronting the street. The architect designed the lot for an office style work at home business with the residence on the back side of the property.

 

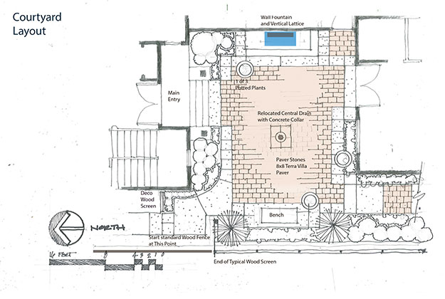
The layout of the site plan is as follows: adjacent to the street is parking for guests, followed by an entry garden gate, around the corner and on to a private courtyard (between the office / casita and residence) whereby you can proceed to the office / casita entry or the main entry to the home.

 

The focus area for ZLA was the design and layout of entry gate garden area and the private courtyard layout between the office and residence. Site features included hardscape, fencing entry gate design, walls, and trellis and plant selections.

Zollner Landscape Architecture    ::     2228 151st PL. SE Bellevue WA 98007    ::     425-747-4543    ::    Email Zollner Landscape Architecture